本文由 ESTUDIO Ignacio Urquiza Ana Paula de Alba 授权mooool发表,欢迎转发,禁止以mooool编辑版本转载。
Thanks ESTUDIO Ignacio Urquiza Ana Paula de Alba for authorizing the publication of the project on mooool. Text description provided by ESTUDIO Ignacio Urquiza Ana Paula de Alba.
ESTUDIO Ignacio Urquiza Ana Paula de Alba:这座位于阿万达罗森林中,坐落在斜坡上的住宅,陡峭的地形将雨水引向邻近的溪流。 住宅的朝向和空间布局顺应地形的起伏以及古树的分布,使主立面朝北,面向溪流,让自然光得以持续照入。相互咬合的体块间形成一个中央空庭,营造出一个内部花园,既保留了场地上的高大松树和橡树,又让南面的阳光自然地温暖着空间。
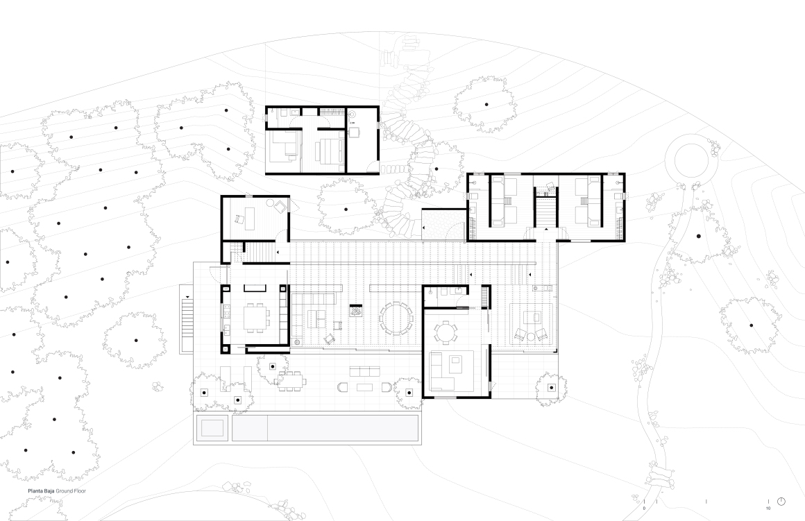
该项目由四个独立的实体空间组成。其中一个包含两间镜像对称的卧室。另一个空间设有电视或家庭活动室,也可用作额外的睡眠区域。第三个空间的底层是厨房,中间层是书房,顶层是主卧室。第四个空间与其他空间分开,内有蓄水池、机械室、服务区域和停车位。
屋顶由三个这样的体块以及主壁炉支撑着——壁炉象征着家庭的炉灶和中心聚会空间。这种结构布局划分出了公共区域,包括客厅、餐厅以及供孩子玩耍或休息的次级活动室。这个空间四面透明,与花园和家庭活动室直接相连。
一面长 9.6 米、高 3.6 米的落地窗界定了起居和用餐区。这面玻璃窗分为四块滑动板,可完全打开,窗框隐入相邻的空间,将室内空间转变为一个有顶的户外露台。这种设计方式使得起居和用餐区合二为一,成为中央的单一空间,实现了室内外环境的和谐融合。
The project is composed of two primary spatial types: solid enclosed volumes and an overarching structure that unites three of these, forming the core gathering space—a dynamic, open living area encased in glass to embrace its surroundings. This space is covered by a lightweight concrete slab supported by steel beams, merging openness with structural strength.
The volumes serve as the primary structure of the house, housing the private spaces and maintaining controlled views through strategically placed windows. These closed areas are designated for rest, cooking, or family time.
There are four distinct solid volumes. One contains two mirrored bedrooms. Another holds a TV or family room that can serve as an additional sleeping area. The third volume features the kitchen on the ground floor, a study on the intermediate level, and the master bedroom on the top floor. The fourth, set apart from the others, contains the cistern, mechanical room, service areas, and parking.
The roof is anchored by three of these volumes, as well as by the main fireplace—an element symbolizing the hearth and central gathering space of the home. This structural arrangement delineates the communal and public zones, including the living and dining areas and a secondary playroom or sitting area for children. This space is transparent on all sides, with a direct connection to the garden and the family room.
A floor-to-ceiling window spanning 9.6 meters in length and 3.6 meters in height defines the living and dining area. Divided into four sliding panels, this expanse of glass opens fully, allowing the frames to disappear into one of the adjoining volumes and transforming the space into a covered outdoor terrace. This approach allowed the design of a single, central living and dining area, harmoniously merging indoor and outdoor settings.
整座房子建在一个裸露的混凝土基座上,这个基座既充当基础又作为底座,形成一道热屏障,最大限度地减少水分的渗透。基座支撑着砖墙,砖墙表面抹了一层光滑的、当地采购的灰泥。
四座建筑的坡屋顶铺着平瓦,有利于收集雨水。相比之下,轻质屋顶则保持平坦,形成一个私人露台,可从家庭的三间卧室进入,将体验向上延伸,让居民从新的高度重新领略树梢的美景。
The entire house rests on an exposed concrete base, serving as both foundation and elevation, creating a thermal barrier that minimizes moisture transfer. This base supports the brick walls, finished in smooth, locally-sourced stucco.
The pitched roofs over the four volumes, covered in flat clay tiles, facilitate rainwater harvesting. In contrast, the lightweight roof remains flat, creating a private terrace accessible from the family’s three bedrooms, extending the experience upward and reintroducing residents to the treetops from a new vantage point.
中性色调的材料搭配形成了一种柔和的单色背景,突出了周围的绿色景观。这些选择将人们的注意力集中在自然环境上,使森林、植被、雨水和环境成为空间体验中不可或缺的一部分。
遵循这一原则,室内采用了轻质材料。织物与墙面柔和的质地相得益彰,低调经典的家具选品旨在不破坏建筑简洁的语言和自然环境的和谐。 经典元素与定制部件之间的平衡体现了简约与中性的设计原则,使外观和触感都充满温馨。
包括染色和天然橡木、黑色大理石以及火山石在内的固体材料构成了色彩基调。天然羊毛、羊绒织物带来温暖,不同重量和中性色调的亚麻布以及当地手工编织的棕榈制品进一步增添了质感。 家具和装饰元素的体积语言基于基本几何形状,通过其纯粹性和对形式的尊重提升了方案的优雅度。 低调的照明装置以柔和的环境光营造出氛围,与该项目的建筑和设计意图相契合。
The material palette, in neutral tones, forms a gentle monochromatic background that highlights the surrounding green landscape. These choices focus attention on the natural setting, enabling the forest, vegetation, rain, and environment to become integral to the experience of the space.
Following this principle, light materials were used for the interior. Textiles complement and contrast the walls’ soft texture, understated and classic furniture pieces were selected with the intention to not overwhelm or disrupt the sober language of the architecture and natural surroundings.The balance between classic elements and custom pieces embodies a design principle of simplicity and neutrality, contributing to warmth in both appearance and tactile experience.
Solid materials, including stained and natural oak, black marble, and volcanic stone, define the palette. Textiles in natural wool, cashmere for warmth, linen in various weights and neutral tones, and locally crafted palm weavings add further texture.The volumetric language of the furnishings and decorative elements is based on fundamental geometries, enhancing the elegance of the proposal through its purity and respect for form.Discreet lighting fixtures complete the ambiance with soft, ambient light, aligning with the architectural and design intentions of the project.
最后,这座住宅探讨了其可居住空间、形态与周边环境之间紧密联系的对比。通过这些变化,每个空间都能自然且连贯地被体验,将建筑与环境融合为一种统一的体验。
Finally, the house explores the contrast between the residence’s habitable spaces, its morphology, and its close relationship to the surrounding context. Through these variations, each space is experienced naturally and seamlessly, merging architecture and environment into one cohesive experience.
“ 中性色调的材料搭配形成了一种柔和的单色背景,突出了周围的绿色景观。这些选择将人们的注意力集中在自然环境上,使森林、植被、雨水和环境成为空间体验中不可或缺的一部分。”
审稿编辑: junjun
更多 Read more about: ESTUDIO Ignacio Urquiza Ana Paula de Alba














































0 Comments