本文由 Escobedo Soliz 授权mooool发表,欢迎转发,禁止以mooool编辑版本转载。
Thanks Escobedo Soliz for authorizing the publication of the project on mooool, Text description provided by Escobedo Soliz.
Escobedo Soliz:CASA PIRULES是位于圣米格尔-德阿连德(墨西哥)最古老街区之一的Valle del Maíz边缘地带的六座房屋之一。该场地地势陡峭,主要生长着本土树木和植被,如胡椒树、刺槐、牧豆树和仙人掌。
该街区保留了其城市结构的原始布局,街道与等高线平行,地块纵向倾斜,顺应了土地的自然坡度。这种传统的布局符合水利和农业标准,便于利用径流进行灌溉。项目与Valle del Maíz原有的动态环境相融合。房屋的规模和比例与周边地块保持一致,确保每一座房屋都能直接与街道相连,并与周边的地形、植被和特色建立和谐的关系。
Escobedo Soliz: Casa Pirules is one of six houses located on the edge of Valle del Maíz, one of the oldest neighborhoods in San Miguel de Allende (Mexico). The site has a steep topography and is populated by predominantly native trees and vegetation—mainly pepper trees, huizaches, mesquites and nopales.
The neighborhood retains the original layout of its urban structure, with streets running parallel to the contour lines and plots that slope longitudinally down following the natural incline of the land. This traditional organization responded to hydraulic and agricultural criteria that allowed for the use of runoff for irrigation.In contrast to the new gated communities that characterize the city’s recent growth, the design seeks to integrate with the pre-existing dynamics of Valle del Maíz. The houses maintain the scale and proportion of the neighboring plots, ensuring that each one retains a direct connection to the street and establishes a respectful dialogue with the morphology, vegetation, and identity of the surroundings.
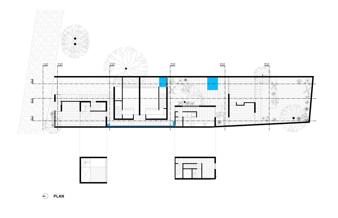
每座房屋由四个体块组成,以容纳建筑功能。从街道到后方,空间序列依次为:店铺空间、卧室空间、厨房和服务空间,最后是起居和用餐空间。在所有六栋房屋中,各空间的尺寸和比例保持一致;不同的是它们在每块地上的位置,以适应现有树木的位置。
各空间之间的流通通过庭院、门廊、楼梯和花园来实现,这些元素在行进过程中依次展现。高度的变化、光线强度的差异、水景和植被共同塑造了房屋内部和外部多样的环境。
Each house comprises four volumes that accommodate the architectural program. From the street to the back, the spatial sequence is organized as follows: the shop volume, followed by the bedroom volume, the kitchen and service volume, and finally the living-dining room volume. In all six houses, the volumes maintain the same dimensions and proportions; what varies is their location within each lot, adapting to the position of the existing trees.
Circulation between volumes is articulated through patios, porticoes, staircases, and gardens that are revealed along the way. Changes in height, varying light intensities, water features, and vegetation define the diverse interior and exterior environments of the house.
砖块被选作理想的墙体材料,因为它可以利用砖块作为标准单位来调节高度和平台的水平。此外,它是一种当地且经济的材料,在墨西哥中部的巴希奥地区广泛使用。
Brick was chosen as the ideal material for the walls, as it allows for modulating heights and platform levels using the brick as the standard unit. Furthermore, it is a local and economical material, widely used in the Bajío region, in central Mexico. The exterior walls of each pavilion are designed to be more robust, fulfilling structural and technical functions: housing facilities, providing acoustic and thermal insulation, and protecting the interior spaces from external conditions.
Architecture: Escobedo Soliz (Pavel Escobedo, Andrés Soliz, Lorane Bellier, Joe McKenzie & Gabriel Angélico)
Construction: Juan Pablo Gónzalez de Cossio
Developer: Cuarto Piso (Francisco Septién & Rafael Urquiza)
Landscape: Matorral
Lighting fixture: Ciro López
Carpentry: La Metropolitana
Structure: Adalberto Estrada
Engineering Projects: Sergio Ayala
“ 砖块被选作理想的墙体材料,它是一种当地且经济的材料,在墨西哥中部的巴希奥地区广泛使用。”
审稿编辑:junjun
更多 Read more about:Escobedo Soliz












































0 Comments