本文由 RAD+ar 授权mooool发表,欢迎转发,禁止以mooool编辑版本转载。
Thanks RAD+ar for authorizing the publication of the project on mooool, Text description provided by RAD+ar.
RAD+ar:折叠空间花园(Folded Rooms Garden) 是位于印度尼西亚万隆紧凑城市肌理中的一次实验性住宅介入(Intervention)。该项目挑战了传统住宅对垂直隔墙的依赖,提出了一种与景观无缝融合的流动居住环境序列。
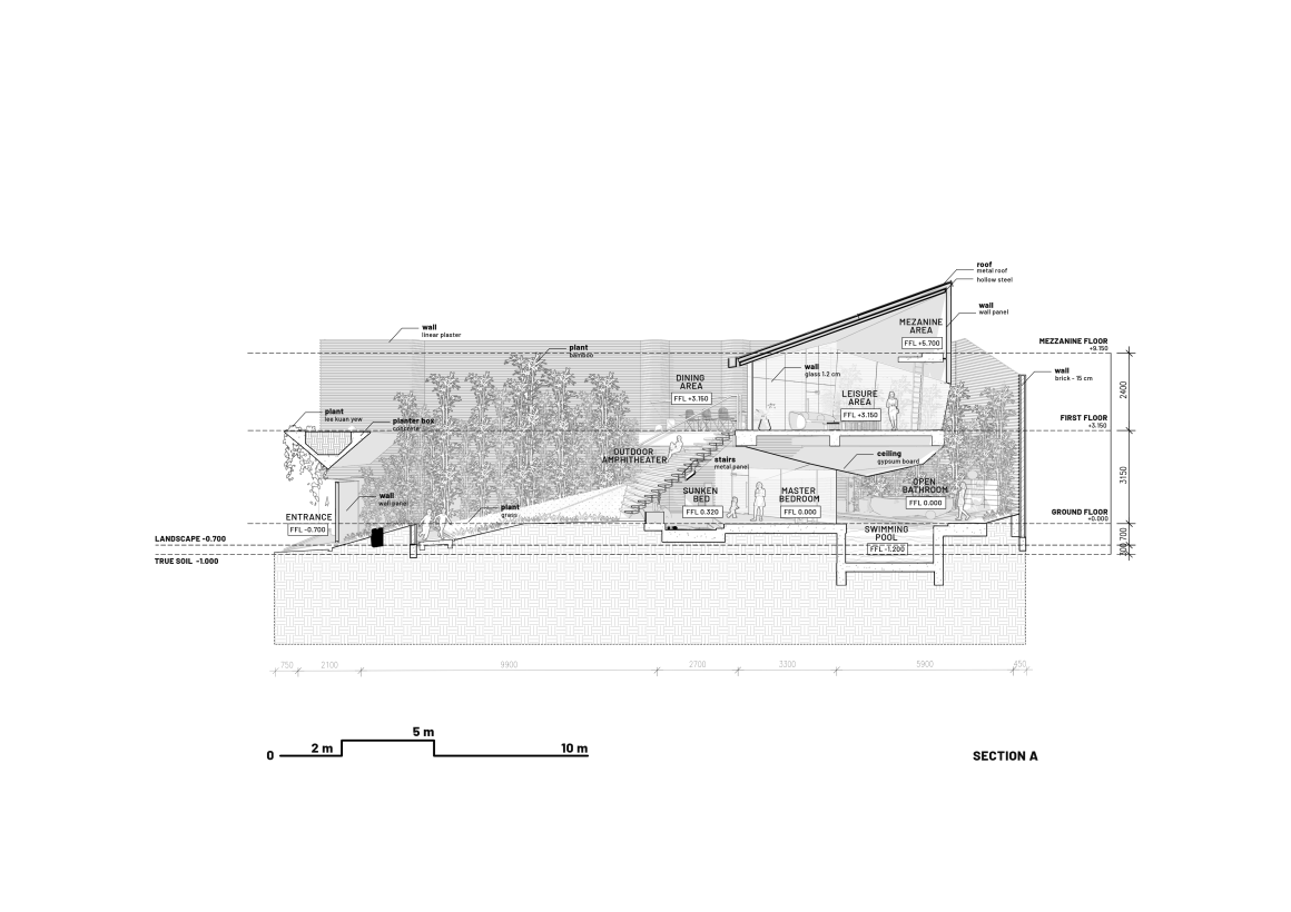
基于“连续折叠”的形态学概念,其建筑叙事由极简主义形式和折叠的建构行为(Tectonic Act)共同定义。设计将建筑构想为一个连续的空间连续体(Spatial Continuum),使交通流线、楼板、天花板和屋顶共同构成一个单一且整体的平面。该平面在场地内被操纵——即折叠与交叠——从而模糊了建筑实体与虚空之间的界限。
RAD+ar:Folded Rooms Garden is an experimental residential intervention located within a compact urban pocket in Bandung, Indonesia. The project challenges the conventional reliance on vertical partition walls, proposing instead a fluid sequence of living environments seamlessly integrated with the landscape.
A morphological concept of the continues fold, the architectural narrative is defined by formal minimalism and a tectonic act of folding. Conceiving the architecture as a continuous spatial continuum, the circulation, floor plates, ceiling, and roof form a single, monolithic plane. This plane is manipulated—folded and sandwiched—within the site, blurring the distinction between the built form and the void.
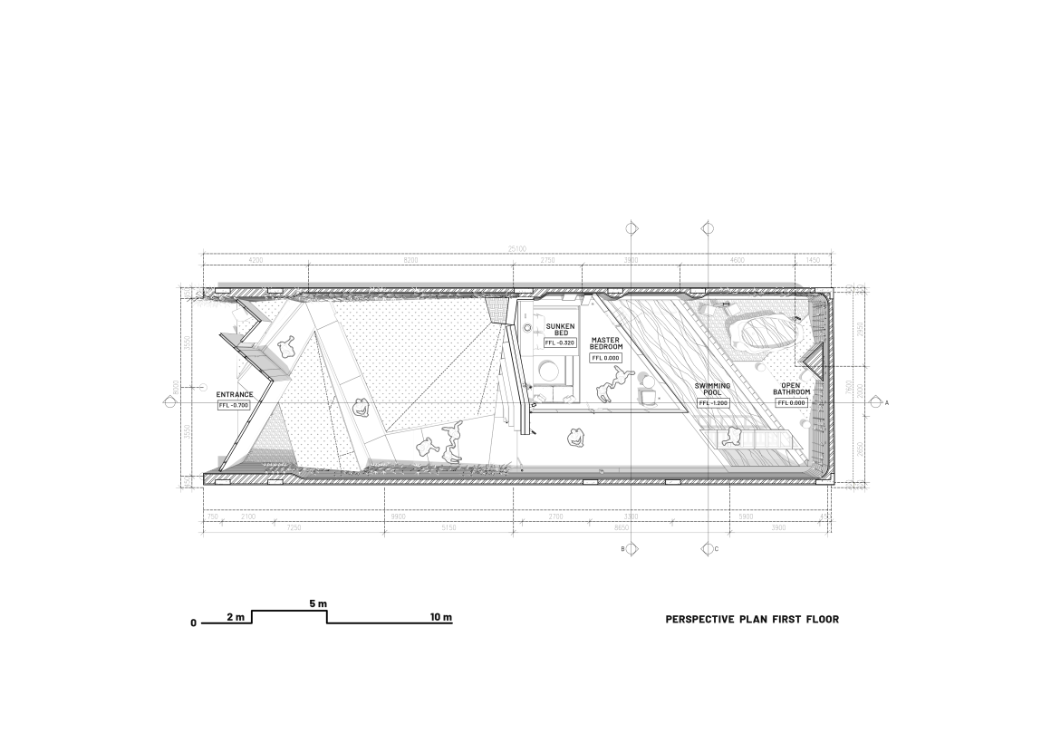
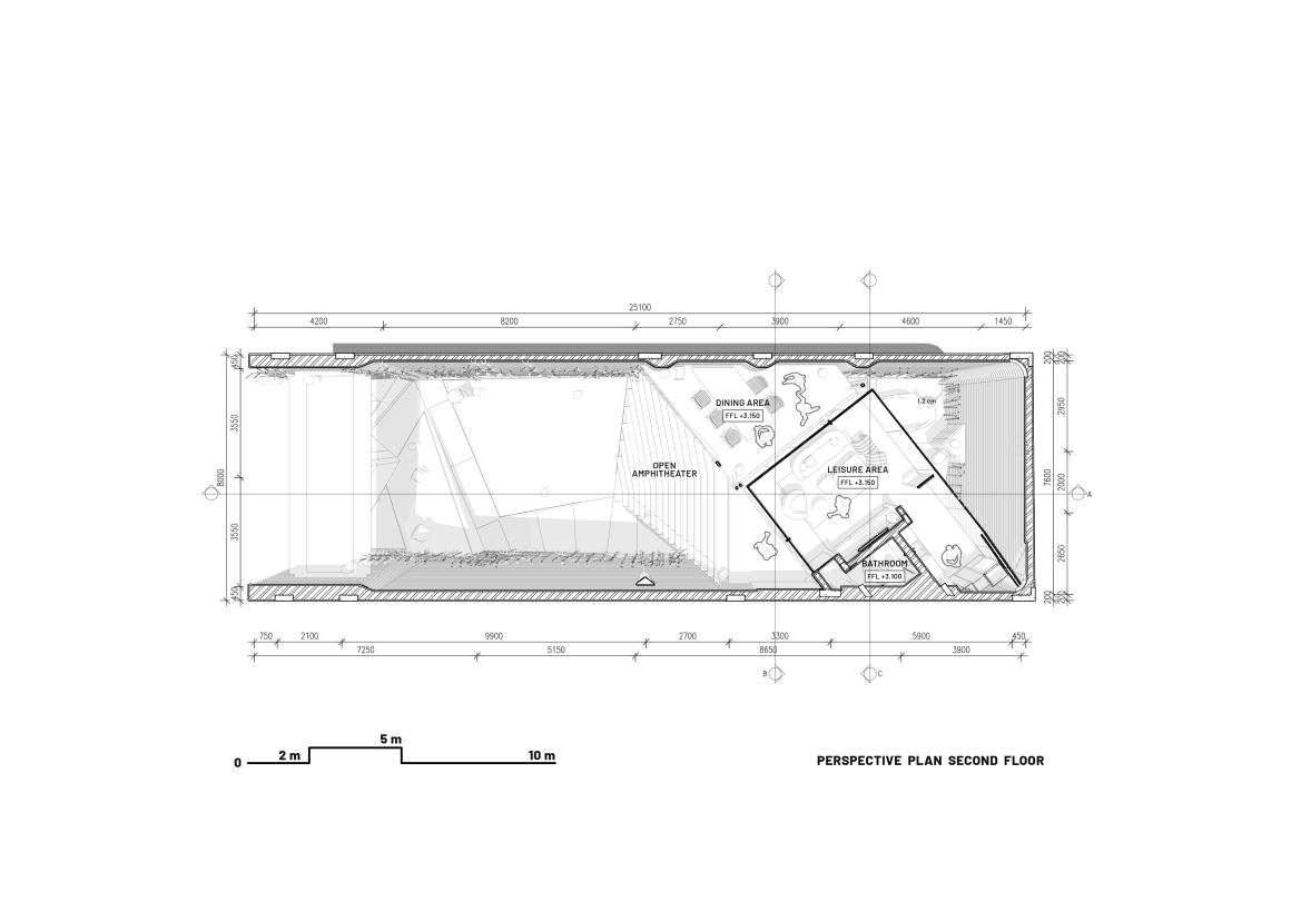
通过介入“虚与实”的辩证关系(Dialectic of Solid and Void),设计利用高差变化而非墙体来界定私密区域,创造出独特的空间序列和剖面上的演绎:
阈值空间(The Threshold):入口被一个悬挂式种植池有意遮挡,形成一个具有生命力的多孔阈值(Porous Threshold)。它作为一种过渡机制,将访客从混乱的城市语境引导至隐秘的庇护所。
上层折叠(公共/半私密区):抬升的平面容纳了一间榻榻米风格的卧室,并毗邻起居和用餐区。该区域作为前院的全景延伸,以开阔的视线和良好的自然交叉通风(Cross-ventilation)为特征。
下层折叠(私密/下沉区):与之形成对比的是,底层设有下沉式寝区。这一地下体量直接通向私人泳池和半户外浴室,四周被遮荫的竹林环绕,营造出一种内向的围合感(Introverted Enclosure)。
Engaging with the dialectic of solid and void, the design utilizes elevation changes rather than walls to delineate zones of privacy. It create a spatial sequences and a sectional play
The Threshold: The entrance is intentionally obscured by a suspended planter, functioning as a “living” porous threshold that transitions the visitor from the chaotic urban context into a secluded sanctuary.
The Upper Fold (Public/Semi-Private): The elevated plane houses a tatami-style bedroom adjoining the living and dining areas. This zone acts as a panoramic extension of the front garden, characterized by open sightlines and cross-ventilation.
The Lower Fold (Private/Sunken): In contrast, the ground level features sunken sleeping quarters. This subterranean volume opens directly onto a private pool and a semi-outdoor bathroom, framed by a shaded bamboo grove that creates a sense of introverted enclosure.

从更宏观的视角来看,这个小型实验项目充当了可渗透原型的生态都市主义实践。除了形式上的探索,“折叠空间花园”还是一个微型城市原型(Micro-urban Prototype)。通过保留 70% 的透水绿地面积,该项目优先考虑了现场雨水收集——这是对印度尼西亚高密度城市规划问题的关键回应。
这个来自 RAD+ar 的小型别墅原型展示了如何将未被充分利用的“口袋空间”(Pocket Spaces)转化为去中心化的生态节点。它倡导一种建筑类型学(Typology)的转变,即私人开发项目应积极通过充当“绿色门户”来通过平衡建筑的趣味性与环境责任感,从而为城市的其水文健康做出贡献。这一理念有望为这个群岛国家中成千上万个类似的零散口袋地块提供灵感。
Serving a bigger picture, this small experiment acted as ecological urbanism of a permeable prototype. Beyond its formal experimentation, Folded Rooms Garden serves as a micro-urban prototype. By maintaining 70% permeable green area, the project prioritizes on-site rainwater harvesting—a critical response to Indonesia’s dense city planning.
This small villa prototype from RAD+ar demonstrates how decentralized “pocket spaces” can be transformed into decentralized ecological nodes. It advocates for a shift in typology where private developments actively contribute to the city’s hydrologic health, serving as a “green gateway” that balances architectural playfulness with environmental responsibility that could inspire thousands of similar pocket spaces all around the scattered archipelagos nation.
Project Name: Folded Rooms Garden
Office Name: RAD+ar
Office Website: radarchitecture.net
Social Media Accounts: @radarchitects
Contact email: visionary@radarchitecture.net
Firm Location: Shanghai & Jakarta
Completion Year: 2025
Gross Built Area (m2/ ft2): 600 sqm
Project Location: Bandung
Program / Use / Building Function: Experimental Villa
Lead Architects: Dadi Prasojo, Antonius Richard
Designer in Charge : Helen Saphira wibowo, Winny
Lead Architects e-mail: visionary@radarchitecture.net
“ 这是紧凑城市肌理中的一次实验性住宅介入。项目挑战了传统住宅对垂直隔墙的依赖,提出了一种与景观无缝融合的流动居住环境序列。”
审稿编辑:junjun
更多 Read more about:RAD+ar






























0 Comments