本文由 OVA 授权mooool发表,欢迎转发,禁止以mooool编辑版本转载。
Thanks OVA for authorizing the publication of the project on mooool. Text description provided by OVA.
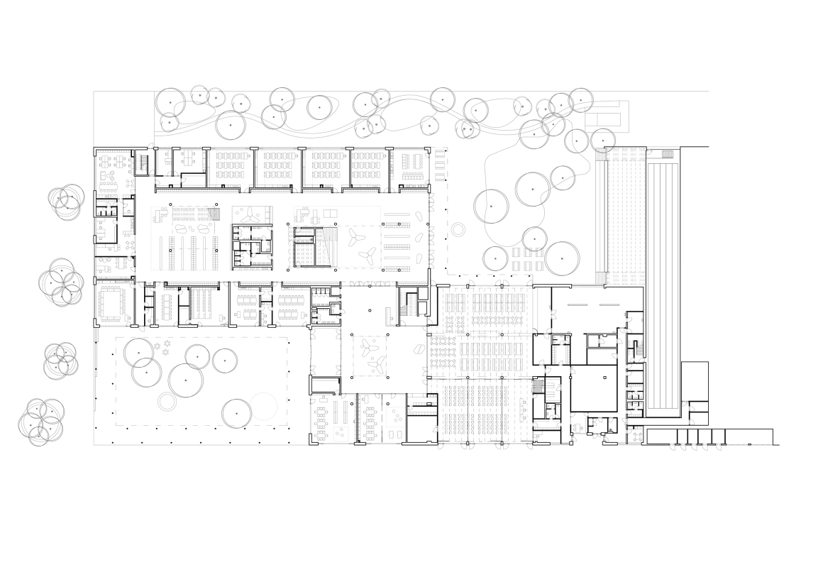
OVA:这是一所位于捷克共和国捷涅村中心拥有两个庭院的学校,一个公共,一个私密,分别对应房屋的两个基本部分。第一个庭院面向村庄的入口庭院向公众开放,构成一处欢迎聚会的空间。第二个庭院通向校园区域,形成一个为儿童活跃游戏或社区活动提供的庇护场所,供他们进行活跃的休息或举办社交活动。
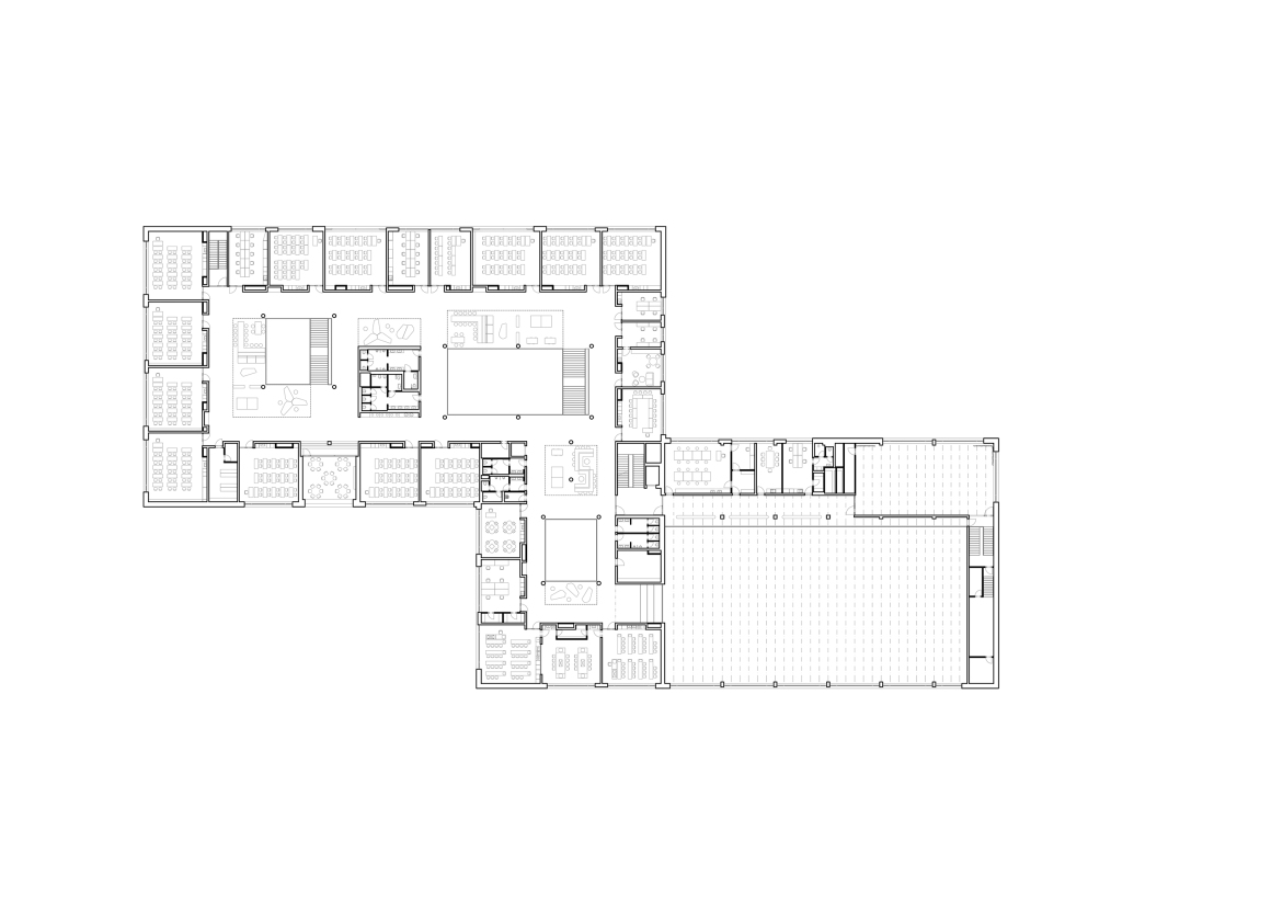
这所学校有三层,其高度结构与地形的坡度相呼应。从市中心抵达时,不仅可以从一楼直接进入该场地,还可以从与体育综合体相连的一楼直接到达。在三楼,拟建一间室外教室,确保从每一层都能直接进入室外。屋顶包括一个室外露台、教室和用于园艺活动的种植床。
这片狭长的教学楼斜坡场地位于靠近布拉格的快速发展的城市Chýně的中心附近。预计周边地区将有大量住宅开发。在一段时间内,新学校可能会独自站在当地边缘的田野上,但最终它将成为城镇建筑结构中不可或缺的一部分。设计目标之一是处理这两种情况——临时隔离和未来的城市融合——并为该场地提供一个明确界定和易于理解的公共空间。
OVA: The design for the new school in Chýně is based on a contemporary, modern approach to education. The school’s shared spaces — both interior and exterior — play an equally important role in the learning process as traditional classrooms. Informal learning can take place in alcoves along corridors, while small nooks provide opportunities for quiet conversation. Study rooms offer various seating arrangements, supporting different modes of concentration. The roof is designed for both play and learning. Thus, the school offers a rich internal world in which both young pupils and teenage students can find their own place.
The building serves not only for primary education but also accommodates afternoon programs — extracurricular activities for pupils as well as educational and sports activities for adults.
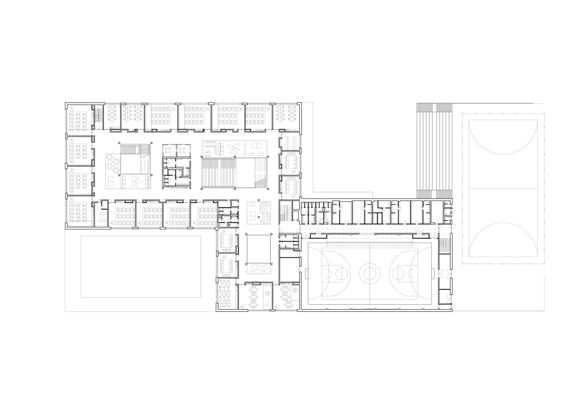
The concept of two courtyards — one public and one private — defines the building’s basic layout. The northern part contains classrooms and the main communal space, while the southern part accommodates sports facilities, an auditorium, and the necessary supporting areas.
The school has three storeys, with its height composition responding to the slope of the terrain. Direct access to the site is possible not only from the ground floor — when arriving from the town center — but also from the first floor, which connects to the sports complex. On the third floor, an outdoor classroom is proposed, ensuring direct access to the exterior from each level. The roof includes an outdoor terrace, classrooms, and planting beds for gardening activities.
该建筑可以在两种主要模式下运行。在上午的教学期间,整个设施完全开放和使用。下午,一种简化的运营模式只允许公众进入建筑的选定部分——俱乐部、图书馆、健身房和多功能厅的空间,这些空间也可以偶尔举办与食堂区相关的文化活动。
学校场地布置在斜坡地形内的两个主要高度层上:第一层对应于学校的主楼及其两个庭院,第二层形成更高一层的体育综合体。
入口庭院为学生、下午节目的游客和公众服务。它包括供青少年使用的躺椅平台和供小学生使用的运动场地。第二个庭院设有室外餐桌,扩大了食堂的容量。它还为下午活动之间的休息和休闲提供了玩耍的空间。游戏结构、跳跃和跑步的柔软表面、绳索金字塔和其他设备都集成在这个区域。从学校礼堂、食堂和练习厨房可以进入内院。
学校的设计符合能源绩效A级标准。供暖由热泵提供,所有空间都配备了受控的机械通风,而每个占用的空间也可以通过可操作的窗户自然通风。主学校和体育大楼屋顶上的光伏板以及外部遮阳和高质量隔热增强了整体能源平衡。该建筑的结构是钢筋混凝土和砌体填充物,有助于提高建筑的热质量和稳定性。外立面覆盖着陶瓷元素。沿着立面的屋顶檐篷和种植的“鸟巢”有助于防止热岛的形成。
The building can operate in two main modes. During the morning teaching regime, the entire facility is fully open and utilized. In the afternoon, a reduced operational mode allows public access only to selected parts of the building — spaces for clubs, the library, the gymnasium, and the multipurpose hall, which can also host occasional cultural events connected to the canteen area.
The school grounds are arranged on two primary height levels within the sloping terrain: the first corresponding to the school’s main floor with its two courtyards, and the second forming the sports complex one level higher.
The sports complex includes several fields: an athletic track with an integrated football pitch, with support facilities, an athletic tunnel, and a refreshment area along its eastern side. Spectator areas are provided both on benches at track level and on the roof of the facilities building, which forms a grandstand. A secondary training field is located between the school and the track and is also accessible during school breaks.
The entrance courtyard serves pupils, visitors to afternoon programs, and the general public. It includes lounging platforms for teenagers and sports surfaces for younger pupils. The second courtyard features outdoor dining tables extending the canteen’s capacity. It also provides space for play during recesses and leisure between afternoon activities. Play structures, soft surfaces for jumping and running, a rope pyramid, and other equipment are integrated into this area. Access to the inner courtyard is possible from the school hall, the canteen, and the practice kitchen.
The school is designed to meet the energy performance class A. Heating is provided by heat pumps, and all spaces are equipped with controlled mechanical ventilation, while each occupied space can also be naturally ventilated through operable windows. The overall energy balance is enhanced by photovoltaic panels on the roofs of both the main school and the sports building, as well as by external shading, and high-quality thermal insulation. The building’s structure is reinforced concrete with masonry infill, contributing to the thermal mass and stability of the building. The exterior façade is clad in ceramic elements. Roof canopies along the façade and planted “tree nests” help to prevent the formation of heat islands.





























